Дизайн інтер’єру та ремонт квартири в районі Сихів

Львів, вул. Кос-Анатольського 4
Вторинний ринок - повний демонтаж та перепланування
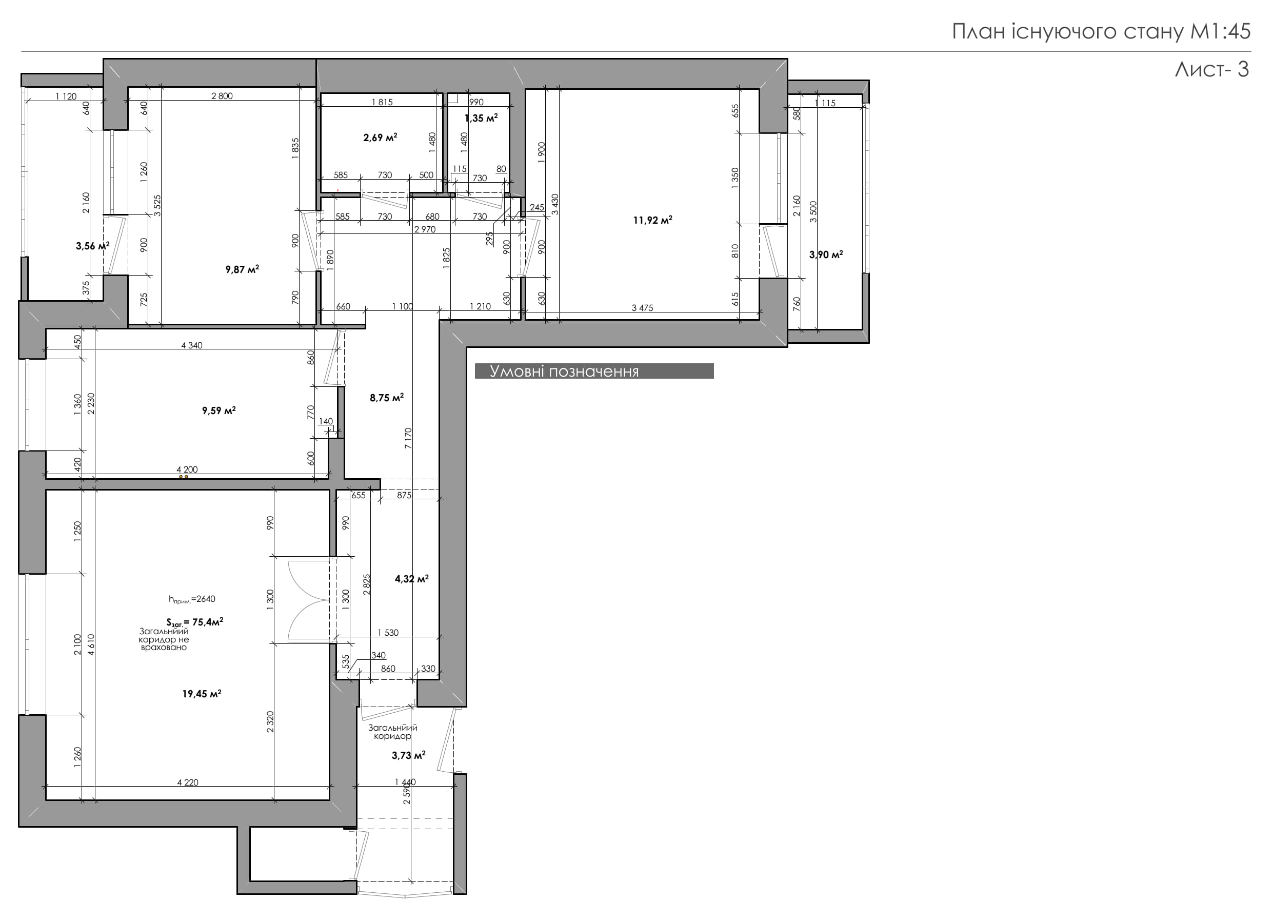
Двокімнатна квартира загальною площею 75 м²

Про проєкт

Львів, вул. Кос-Анатольського, 4. Двокімнатна квартира загальною площею 75 м². Повний демонтаж, перепланування, розробка дизайн-проєкту та комплексний ремонт під ключ.

Проєкт реалізовано в сучасному житловому комплексі Львова для двокімнатної квартири площею 75 м². Інтер’єр виконано в стилі сучасного мінімалізму з елементами скандинавського дизайну. Використана нейтральна кольорова гама — бежевий, сірий та білий тони. Акцент зроблено на натуральних матеріалах, максимумі природного світла та вільному просторі.

Основне завдання полягало в створенні комфортного та функціонального житла для сім’ї. Було оптимізовано планування з об’єднанням зон відпочинку та їдальні. Забезпечено максимальну зручність у спальні та санвузлі.

Реалізація проєкту

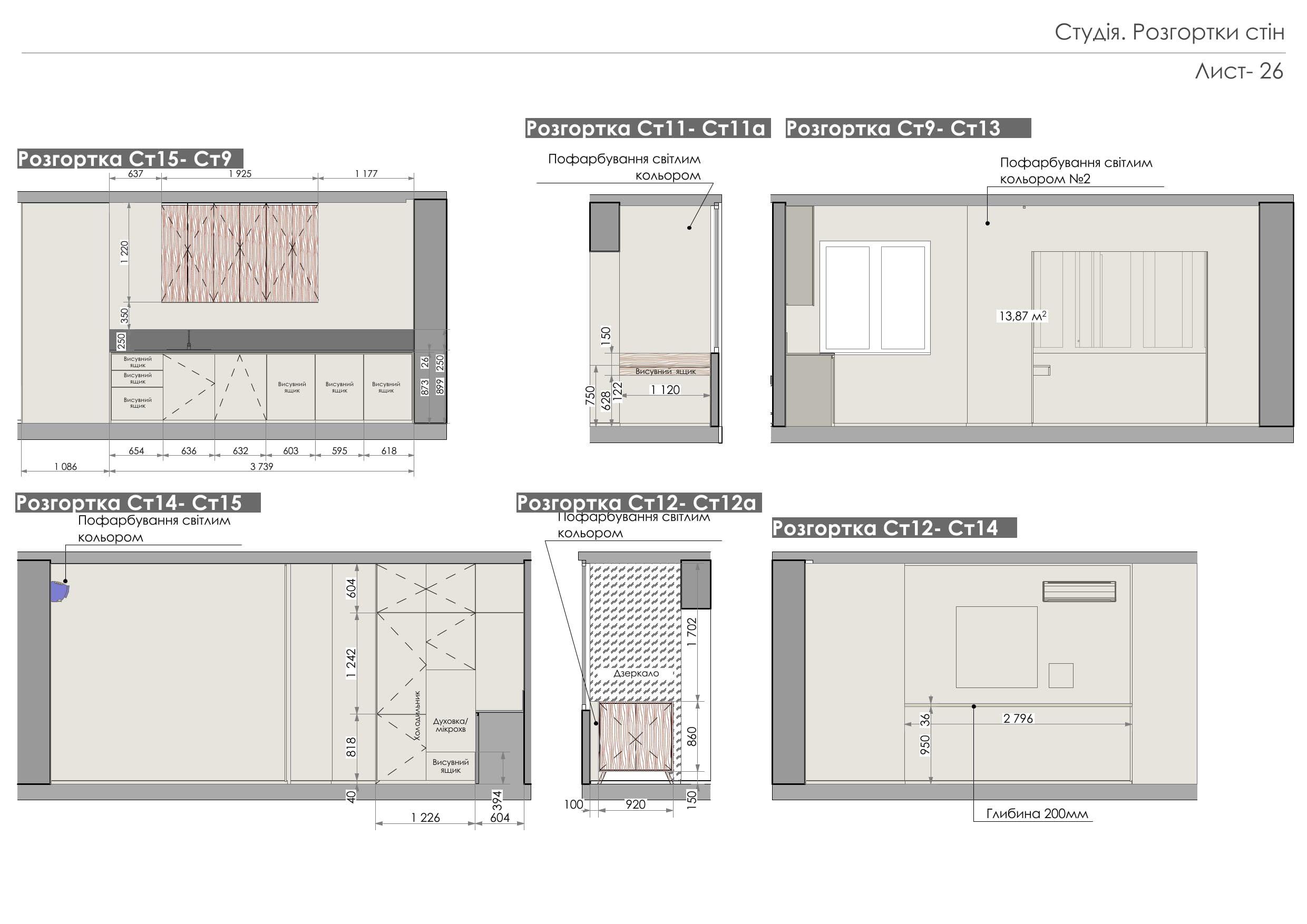
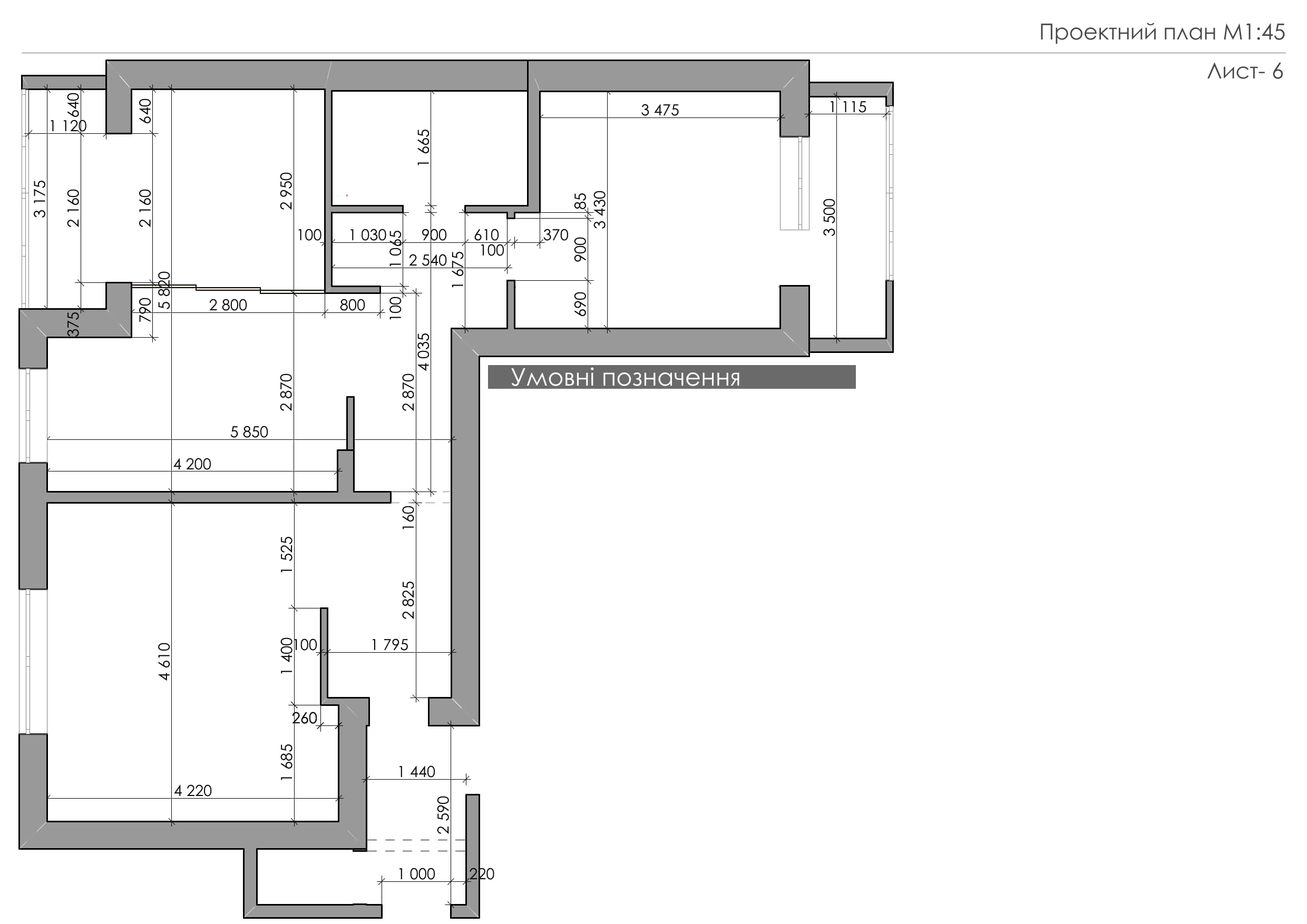
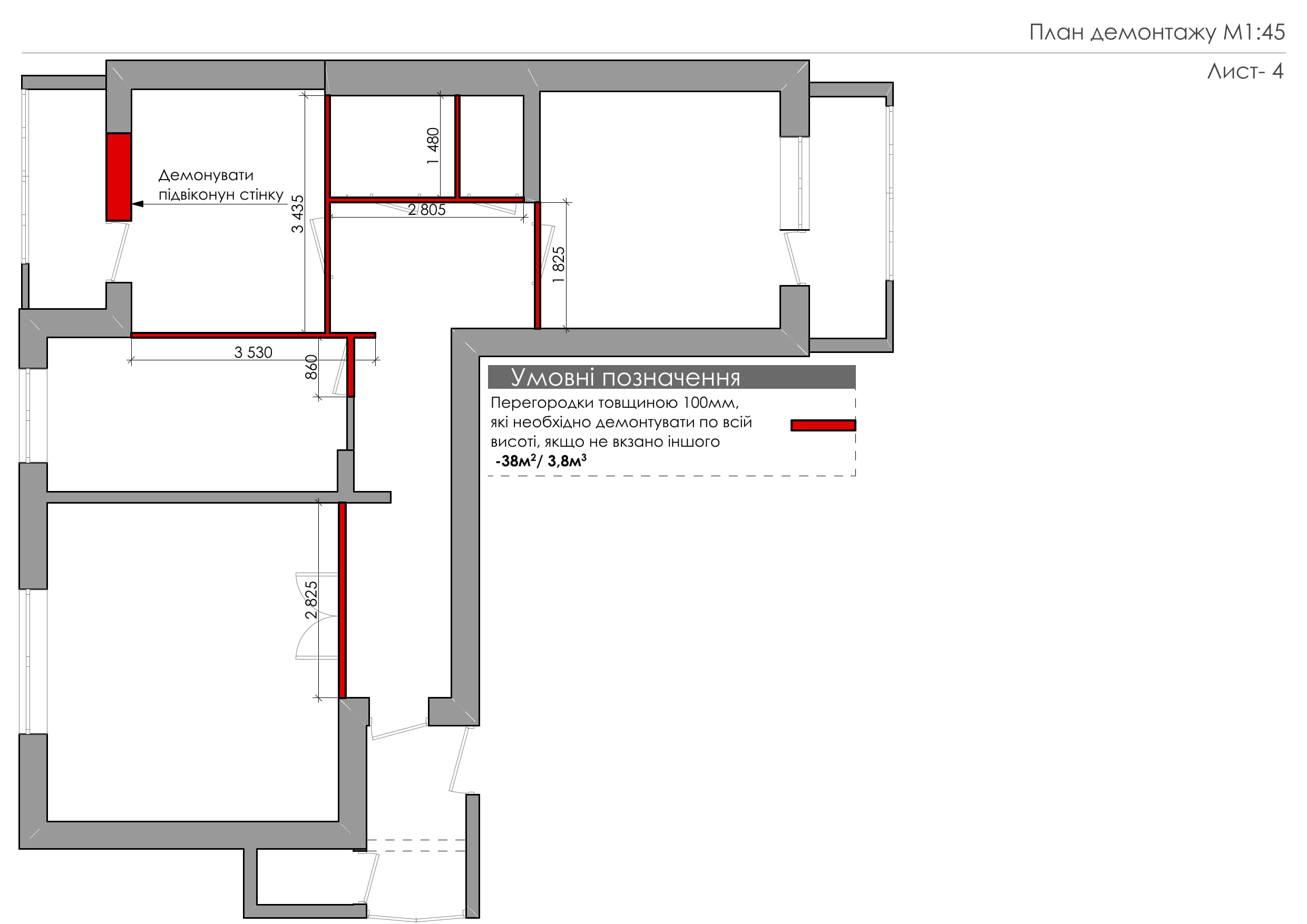
Виконано повний демонтаж старого оздоблення та перегородок з подальшим переплануванням. Підлога по всій квартирі встелена паркетом.

Кухонна зона обладнана сучасною вбудованою технікою, мармуровою стільницею та дерев’яними фасадами. Вітальня включає L-подібний диван, настінний телевізор та мінімалістичні полиці. Спальня обладнана великим ліжком, приліжковими тумбами, вбудованими шафами з матовими фасадами та кондиціонером.

Санвузол оздоблено мармуровою плиткою великого формату. Встановлено душову кабіну зі скляними дверима, підвісний умивальник, унітаз та сучасну сантехніку.

Освітлення реалізовано за допомогою трекових світильників, вбудованих LED-стрічок та підвісних ламп для ефективного зонування. Використані матеріали преміумкласу: натуральне дерево, скло, якісні тканини. Все спрямовано на створення гармонійного, теплого та довговічного інтер’єру.

Дизайн-проєкт квартири

Відеоогляд ремонту

Фото ремонту

Залишилися питання чи потрібна консультація?

Залиште свої дані прямо зараз, і ми вам перетелефонуємо.





    Фото до початку робіт

    Telegram
    Viber
    Messenger
    Instagram