Дизайн інтер’єру та ремонт квартири в ЖК “Шоколад”

Львів, вул. Голоско 24
ЖК "Шоколад"
Однокімнатна квартира загальною площею 46,56 м²

Про проєкт

Однокімнатна квартира в ЖК “Шоколад” — світлий і затишний простір площею 46,56 м², де мінімалізм поєднується з яскравими акцентами.

Локація — ЖК “Шоколад”, Львів.

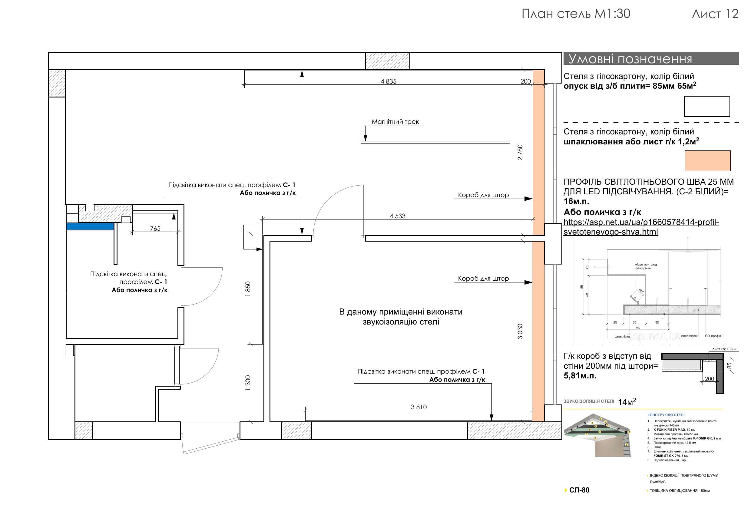
Завдання — розробити дизайн-проєкт, виконати комплексний ремонт під ключ, облаштувати функціональний інтер’єр, у якому природні матеріали та насичені відтінки створюють домашню атмосферу.

Реалізація проєкту

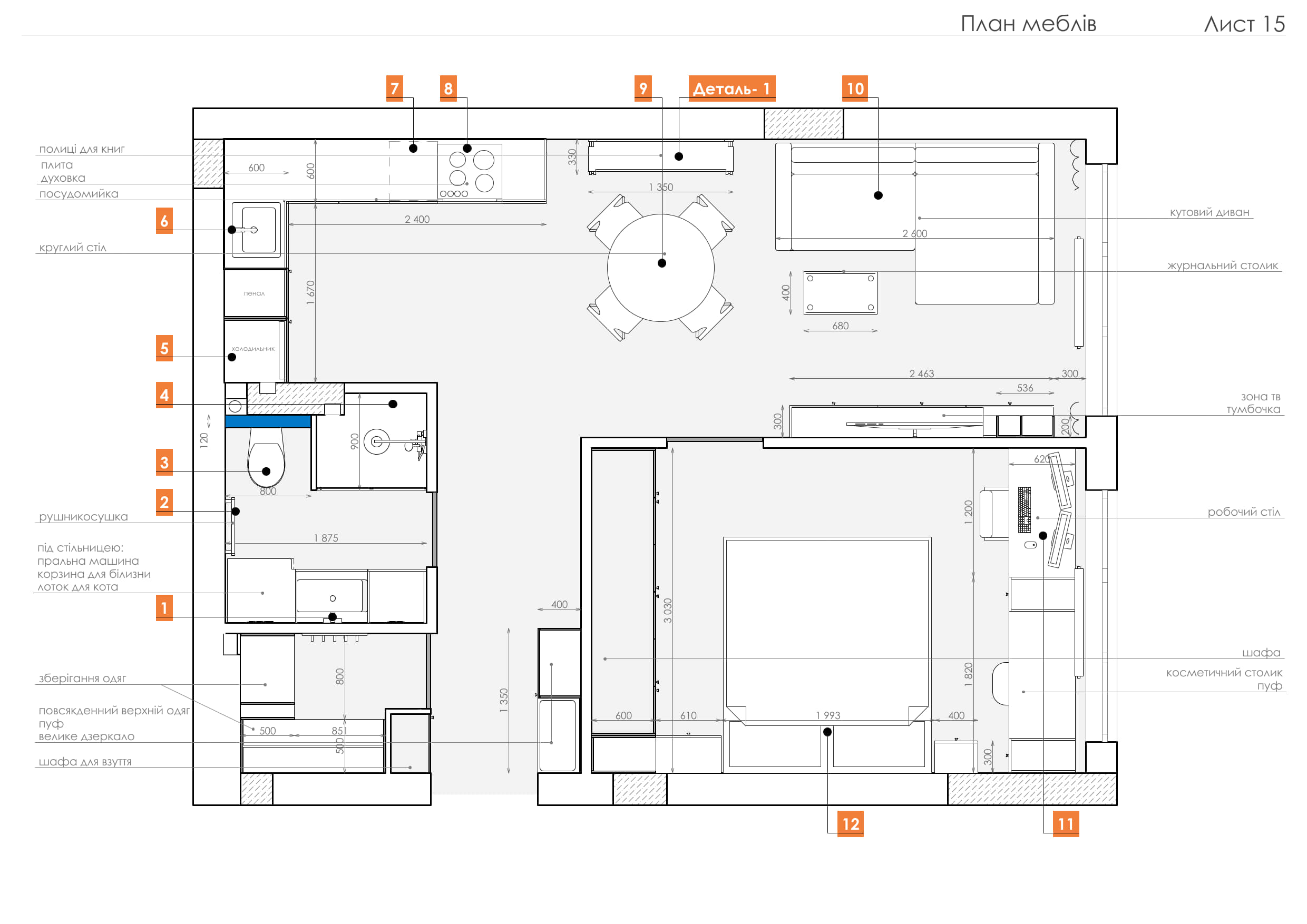
Кухня та вітальня утворюють єдиний простір завдяки відкритому плануванню. Верхні кухонні шафи оливкового відтінку стали головним кольоровим рішенням, а світло-сірі нижні фасади зі стільницею додають контрасту. Техніка повністю вбудована, а підсвітка розташована у найбільш продуманих зонах.

Дерев’яний круглий стіл з’єднує кухню з вітальнею. Жовтий диван наповнює простір теплом, а паркет в ялинку додає природності. Лінійне освітлення підкреслює архітектуру стелі.

Стильна спальня витримана у світлих тонах. Жовте узголів’я ліжка повторює акцент вітальні. Біла шафа має відкриті полиці для книг — практично й естетично. Біля вікна розташована робоча зона з комфортним кріслом.

Передпокій виділяється оливковою нішею, що підтримує кольорове рішення кухні.

Ванна кімната оформлена оливковою плиткою під камінь. Дзеркало з підсвіткою, естетичні лінії та стильна душова — кожна деталь є частиною загального затишку.

Дизайн-проєкт квартири

Відеоогляд ремонту

Фото ремонту

Залишилися питання чи потрібна консультація?

Залиште свої дані прямо зараз, і ми вам перетелефонуємо.





    Telegram
    Viber
    Messenger
    Instagram