Дизайн інтер’єру та ремонт квартири в ЖК “Глобус Парк”

Сокільники, вул. Героїв Майдану 19а
ЖК "Глобус Парк"
Двокімнатна квартира загальною площею 68 м²

Про проєкт

Проєкт реалізовано в житловому комплексі «Глобус Парк» у Сокільниках для двокімнатної квартири площею 68 м². Інтер’єр виконано в стилі сучасного мінімалізму з яскравими акцентами. Основна кольорова гама — нейтральні світлі тони з домінантою оливкового зеленого та дерев’яних текстур. Завдання полягало в створенні комфортного, функціонального простору для молодої сім’ї з акцентом на відкрите планування, максимум природного світла та зручне зонування.

Реалізація проєкту

Виконано планування з об’єднанням кухні та вітальні. Підлога встелена світлим ламінатом з імітацією деревини.

Кухня оснащена матовими фасадами оливкового кольору, дерев’яною стільницею та вбудованою технікою. Вітальня має яскравий зелений диван, дерев’яну ТВ-зону з відкритими полицями та робоче місце біля вікна.

Спальня у світлих тонах окрім ліжка містить шафу з дерев’яним фасадом та робочий стіл. Трековий світильник створює затишну атмосферу.

Санвузол оздоблено великоформатною плиткою з ефектом бетону, накладним умивальником на зеленій тумбі та хромованою фурнітурою.

Освітлення — трекові світильники та приховане LED-підсвічування. Використані натуральні матеріали та якісні тканини для теплого, сучасного інтер’єру.

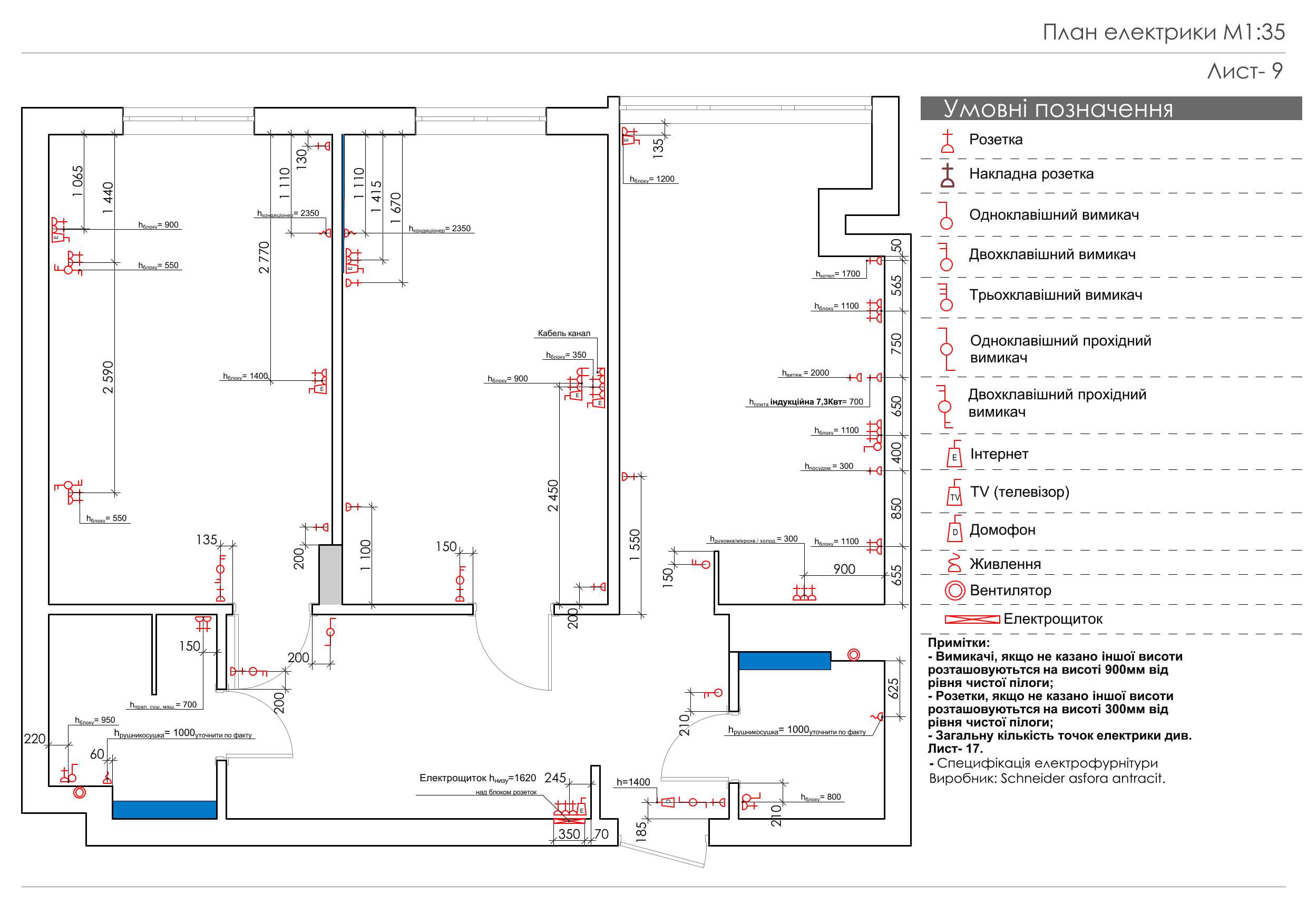
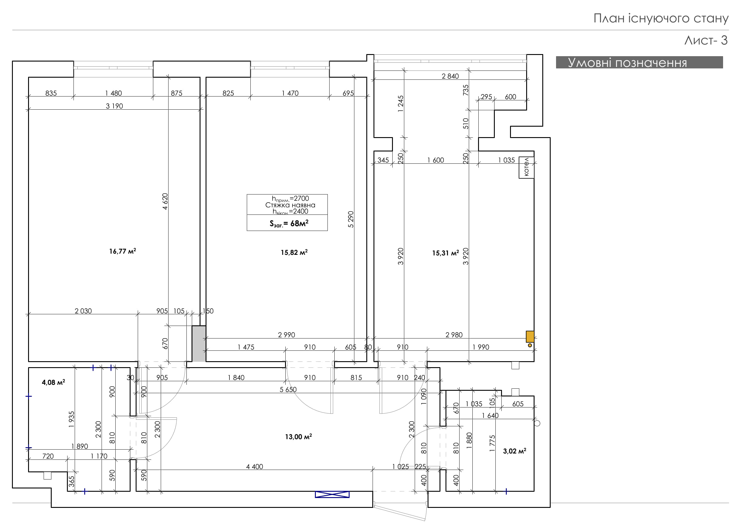
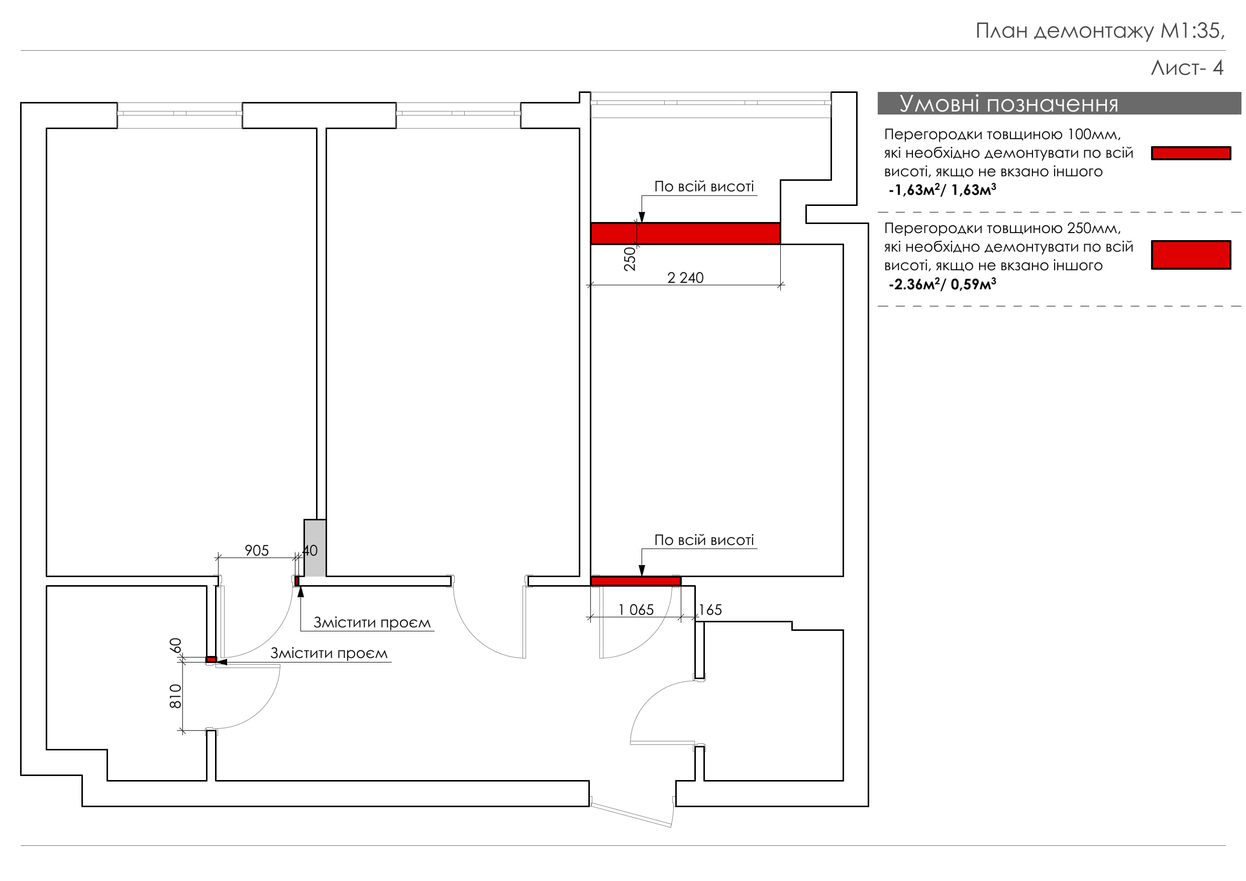
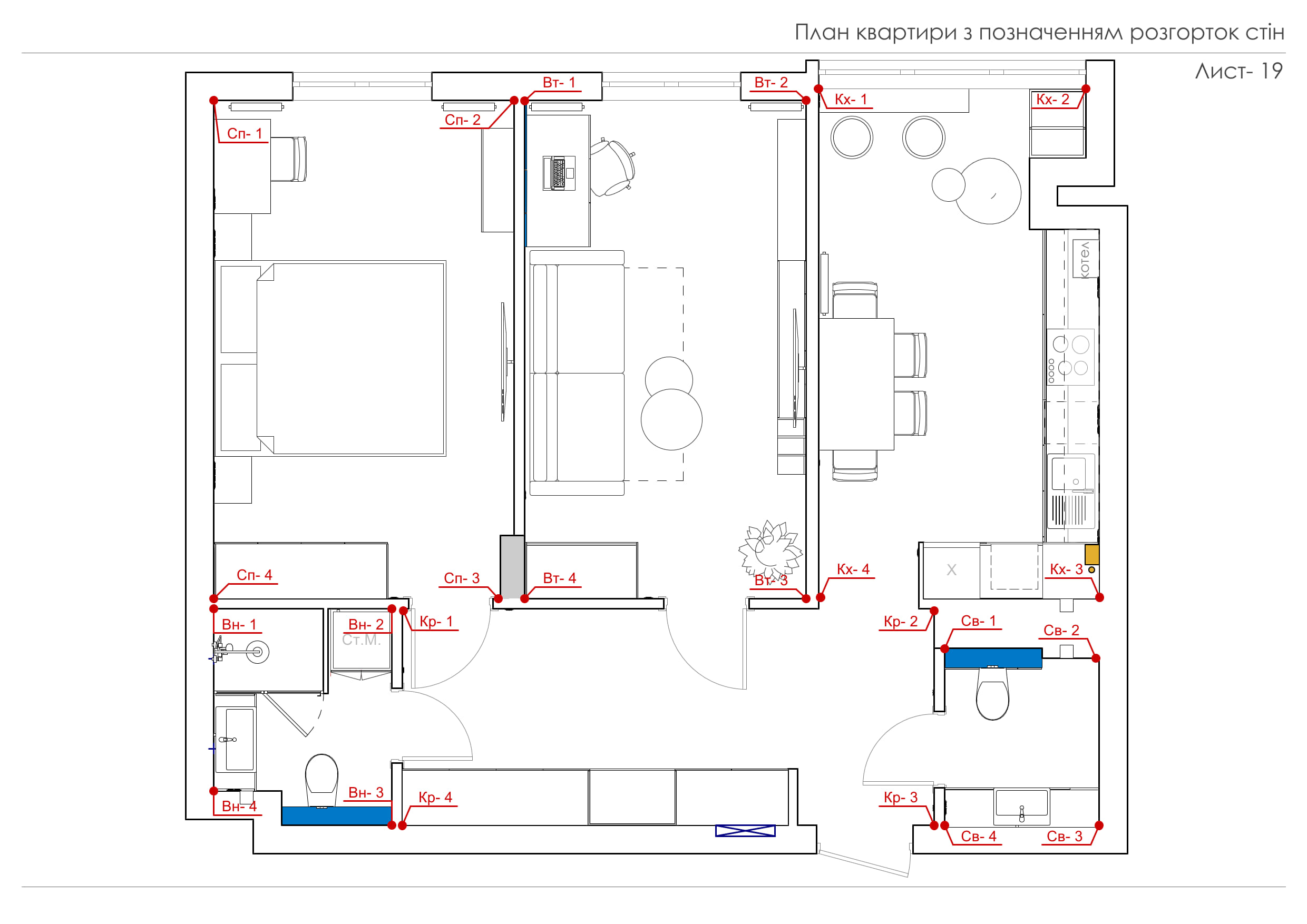
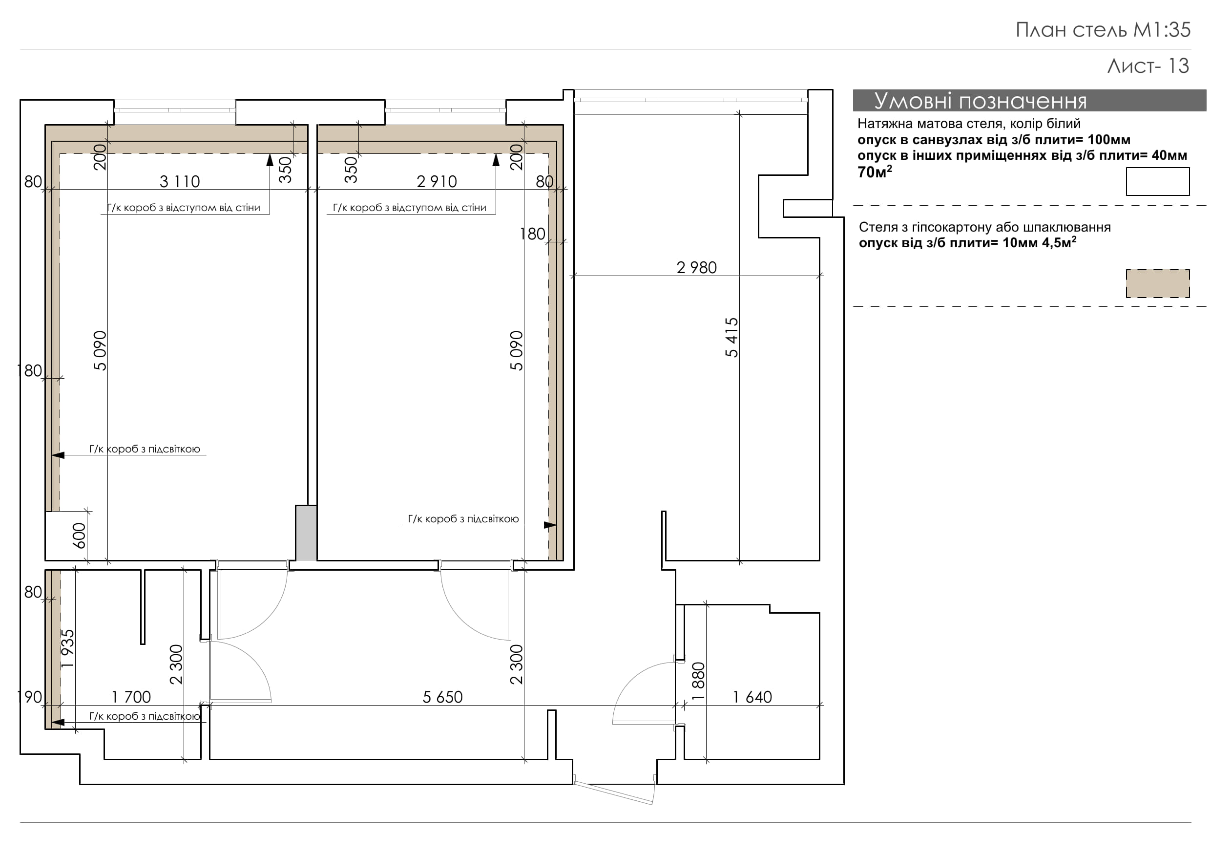
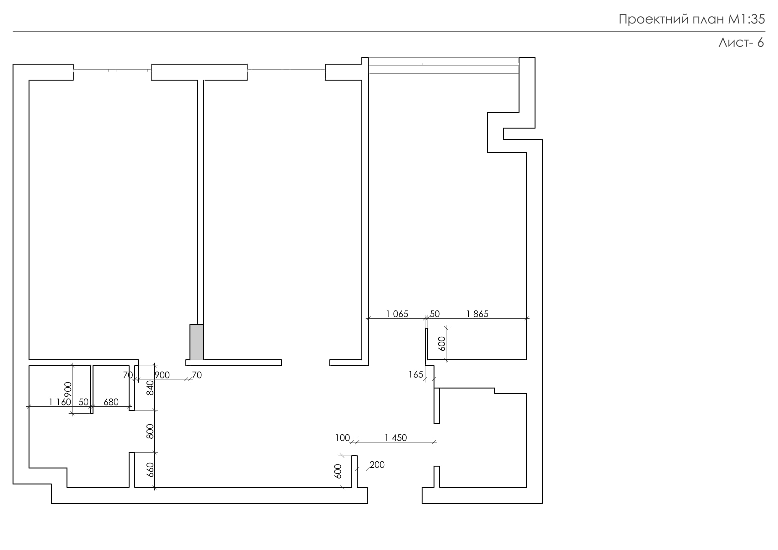
Дизайн-проєкт квартири

Відеоогляд ремонту

Фото ремонту

Залишилися питання чи потрібна консультація?

Залиште свої дані прямо зараз, і ми вам перетелефонуємо.





    Telegram
    Viber
    Messenger
    Instagram